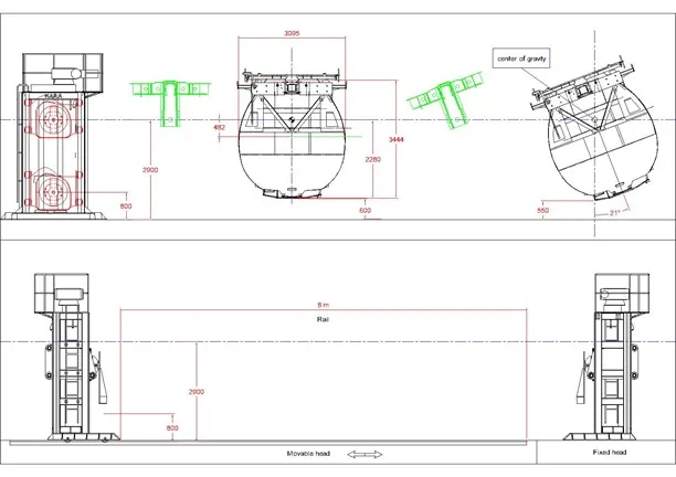
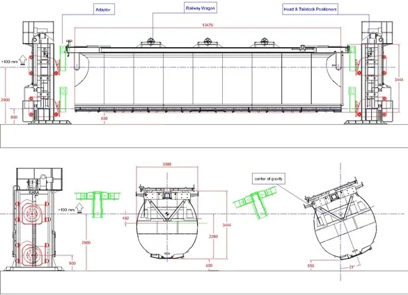
Head and Tailstock Welding Positioner
Positioner Benefits:A properly positioned weldment, regardless of the size, reduces welder fatigue, increases safety, improves weld quality, and saves on production floor space.By relocating the weldment or assembly component, workers are not forced into an unsafe or ergonomically uncomfortable position.Explore our advanced
welding solutions designed for efficiency and precision.Applications:
- Heavy Welding Industry
- Robotic Welding, Cutting and Assembly
- Production Welding
- Laser Applications (Welding, Cutting)
- Component Assembly
- Cleaning
Description:
- Head and Tailstock Welding Positioner, designed for the assembly, material handling and welding applications industries.
- Headstock & Tailstock elevating and tilt work positioners can be customized to fit your facility's requirements including fixed‐fixed, fixed‐adjustable, fixed‐mobile, and fully portable positioner options.
Technical Features:
- A headstock/tailstock spins on both the vertical and horizontal axis.
- Rotating about the horizontal axis – coupled with a custom fixture design – a rollover for material handling provides clear access to the top, bottom, front and back of the part.
- In a welding application, welds are presented to the operator with optimal weld positioning, torch access, and torch angles resulting in improved quality when using the material handling rotisserie.
- A work positioner will translate vertical position welds to an optimal flat or horizontal position.
Ergonomic & Usability Benefits:In all applications (inspection, assembly, cleaning, etc.) the part is rotated into the worker envelope, reducing ergonomic fatigue, increasing productivity and up-time as the
weld positioner offers optimal usability.

